3307 17 Mile Drive 3, Pebble Beach, CA 93953
  • MLS#: ML81967156 ( Single Family Residence )
  • Street Address: 3307 17 Mile Drive 3
  • Viewed: 1
  • Price: $6,595,000
  • Price sqft: $2,300
  • Waterfront: No
  • Year Built: 1970
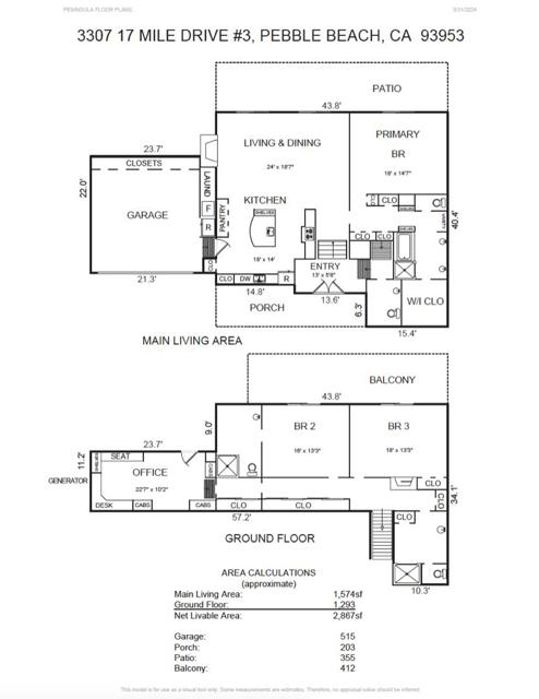
  • Bldg sqft: 2867
  • Bedrooms: 3
  • Total Baths: 4
  • Full Baths: 3
  • 1/2 Baths: 1
  • Garage / Parking Spaces: 2
  • Days On Market: 574
  • Additional Information
  • County: MONTEREY
  • City: Pebble Beach
  • Zipcode: 93953
  • District: Carmel Unified
  • Provided by: Carmel Realty Company
  • Contact: Courtney Courtney
  • California Regional MLS IDX
  • DMCA Notice
  • Description
    Rarely available opportunity to own within the exclusive and highly sought after Residences at Pebble Beach, a collection of just 23 homes situated above the The Lodge at Pebble Beach. Providing unparalleled access to world class amenities, this stunning ocean view residence offers the epitome of coastal luxury living. Indulge in breathtaking ocean views stretching from the pristine shores of Carmel Beach to the iconic Point Lobos. This free standing residence boasts 3 bedrooms, and 3 1/2 baths, including a spacious primary suite, additional ensuite bedroom, plus a versatile office space. The renowned Pebble Beach Golf Links and Peter Hay Golf Course are just steps away, offering an unmatched golfing experience amidst the stunning coastal landscape. Direct access to restaurants and services at The Lodge, Casa Palmero and The Beach and Tennis Club are steps from your front door. This exquisite location offers a unique opportunity to have the benefits of resort living with the privacy of a home.
Property Location and Similar Properties
Request More Information
  • All fields are required.
Contact Patrick Adams
Contacting Patrick Adams
  • All fields are required.
Schedule A Showing
Schedule a Showing.
  • All fields are required.
Check this box to Register with us:
Features
Appliances
  1. Electric Cooktop
  2. Dishwasher
  3. Range Hood
  4. Microwave
  5. Electric Oven
  6. Refrigerator
  7. Warming Drawer
Association Fee
  1. 455.00
Association Fee Frequency
  1. Monthly
Common Walls
  1. No Common Walls
Cooling
  1. None
Direction Faces
  1. Southwest
Eating Area
  1. Breakfast Counter / Bar
Fireplace Features
  1. Family Room
  2. Gas Starter
Flooring
  1. Tile
  2. Wood
Foundation Details
  1. Slab
Garage Spaces
  1. 2.00
Laundry Features
  1. In Garage
Living Area Source
  1. Other
Parcel Number
  1. 008521003000
Property Type
  1. Single Family Residence
Roof
  1. Composition
School District
  1. Carmel Unified
Sewer
  1. Public Sewer
View
  1. Ocean
Water Source
  1. Public
Year Built
  1. 1970
Year Built Source
  1. Assessor
Zoning
  1. R1