707 Hueneme Road, Oxnard, CA 93033
  • MLS#: V1-32652 ( Industrial )
  • Street Address: 707 Hueneme Road
  • Viewed: 16
  • Price: $3,099,000
  • Price sqft: $0
  • Waterfront: No
  • Year Built: 2005
  • Bldg sqft: 0
  • Days On Market: 102
  • Additional Information
  • County: VENTURA
  • City: Oxnard
  • Zipcode: 93033
  • Provided by: IPA Realty
  • Contact: Michael Michael
  • California Regional MLS IDX
  • DMCA Notice
  • Description
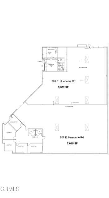
    Major price reduction! Price reduced by $300k. Now only $246.40 psf. The property is a 12,577 sq. ft. industrial facility divided as a two tenant building. 707 E. Hueneme is 7,015 sq. ft. and 709 E. Hueneme is 5,562 sq. ft. Comprised of all ground floor industrial space it includes 2 loading doors and a fenced parking area. The building is equipped with 600 Amp 277/480 Volt power service. Situated on a corner lot of just over one acre of land with two access points. Conveniently located less than one mile from the Pacific Ocean, two miles from the Port of Hueneme and 10 minutes from the 101 freeway corridor. This is a rare opportunity to acquire a two tenant property which can be fully or partially occupied and can be purchased below replacement value for similar industrial properties in Southern California. The two tenant layout give ample flexibility for businesses to grow and create passive income possibilities in the near and long term. The fenced parking area is a unique feature that is highly desirable.
Property Location and Similar Properties
Request More Information
  • All fields are required.
Contact Patrick Adams
Contacting Patrick Adams
  • All fields are required.
Schedule A Showing
Schedule a Showing.
  • All fields are required.
Check this box to Register with us:
Features
Assetclass
  1. Industrial
Building Area Total
  1. 12577.00
Commoninterest
  1. None
Construction Materials
  1. Concrete
Cooling
  1. Central Air
Country
  1. US
Current Use
  1. Industrial
Electric
  1. 440 Volts
Fencing
  1. Wrought Iron
Heating
  1. Central
Industrial Squarefootage
  1. 10628
Industrialtype
  1. Manufacturing
  2. Warehouse/Office
  3. Warehouse/Distribution
Land Use
  1. Industrial
Laundry Features
  1. None
Parcel Number
  1. 2230044055
Property Type
  1. Industrial
Roof
  1. Flat
Views
  1. 16
Water Source
  1. Public
Year Built
  1. 2005
Year Built Source
  1. Builder
Zoning
  1. ML